非常感谢 ATELIER BRÜCKNER 分享内容给 WeHow。
Thanks to ATELIER BRÜCKNER for sharing with WeHow.
1. 博物馆基本信息与建筑概况
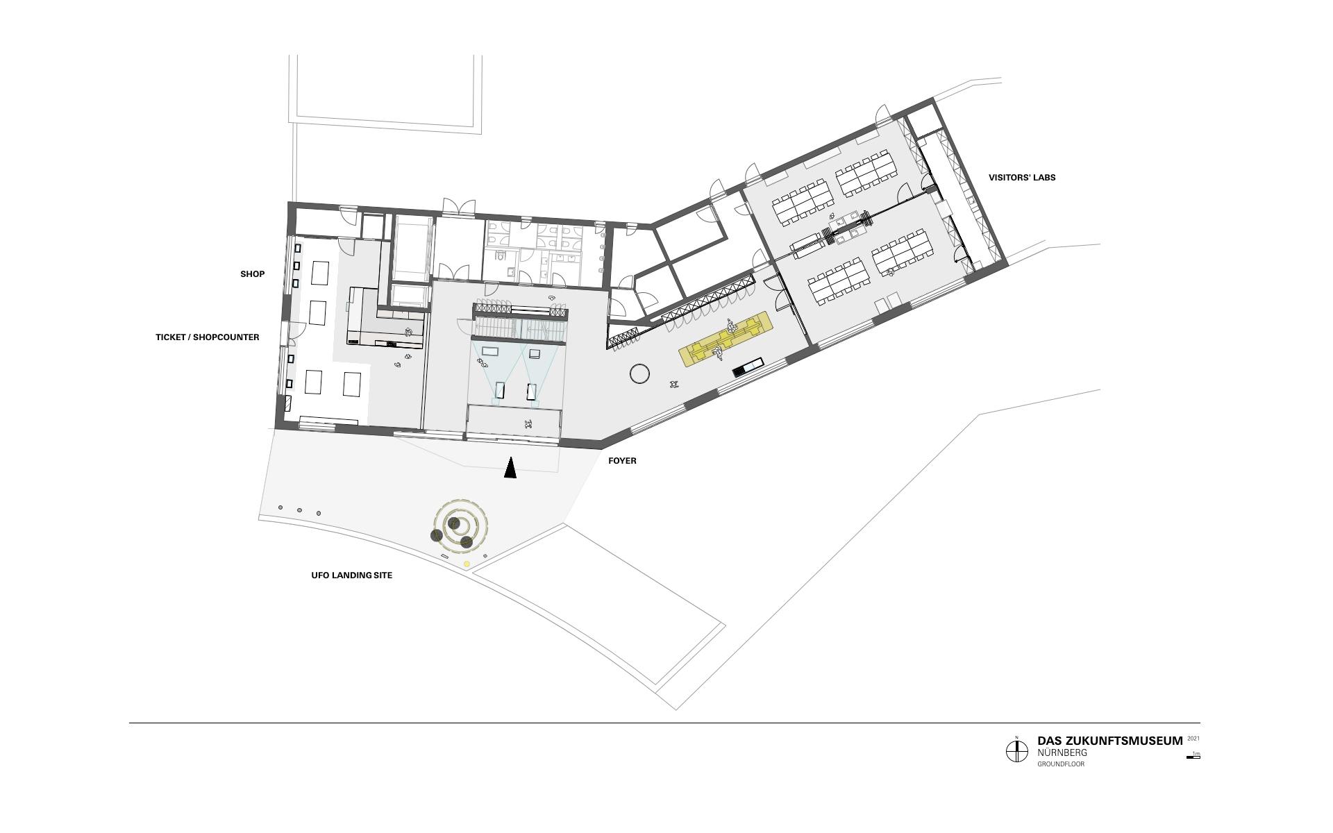
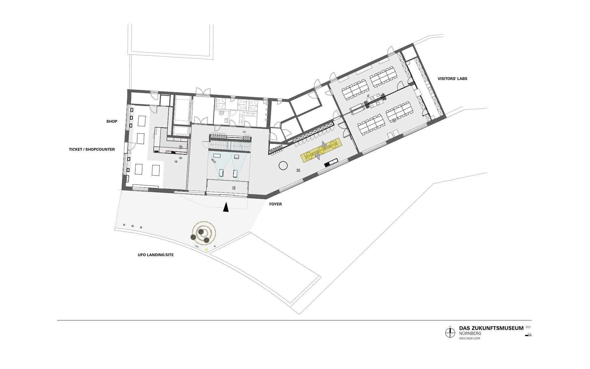
慕尼黑德意志博物馆的分支场馆 “纽伦堡未来博物馆”(Das Zukunftsmuseum)在纽伦堡历史城区中心,这座颇具吸引力的博物馆坐落于佩格尼茨河畔,位于斯塔布建筑事务所(Staab Architekten)设计的新建筑群 “奥古斯汀霍夫”(Augustinerhof)内。布鲁克纳工作室负责该馆常设展览的设计,展览总面积达 2900 平方米。博物馆部分区域为双层结构,通过大尺寸开窗设计,既为新建筑引入充足自然光,也让游客能欣赏到室外景观。
“Das Zukunftsmuseum” (The Future Museum), an offshoot of the Deutsches Museum Munich, is situated in the centre of Nuremberg’s historic district. This appealing museum stands on the banks of the Pegnitz and is located within the Augustinerhof, a new building complex designed by Staab Architekten. ATELIER BRÜCKNER is responsible for the design of the museum’s permanent exhibition, which covers a total area of 2,900 square metres. Some parts of the museum feature a two-storey structure, and the generously sized window openings not only bring abundant natural light into the new building but also allow visitors to enjoy views of the outside.
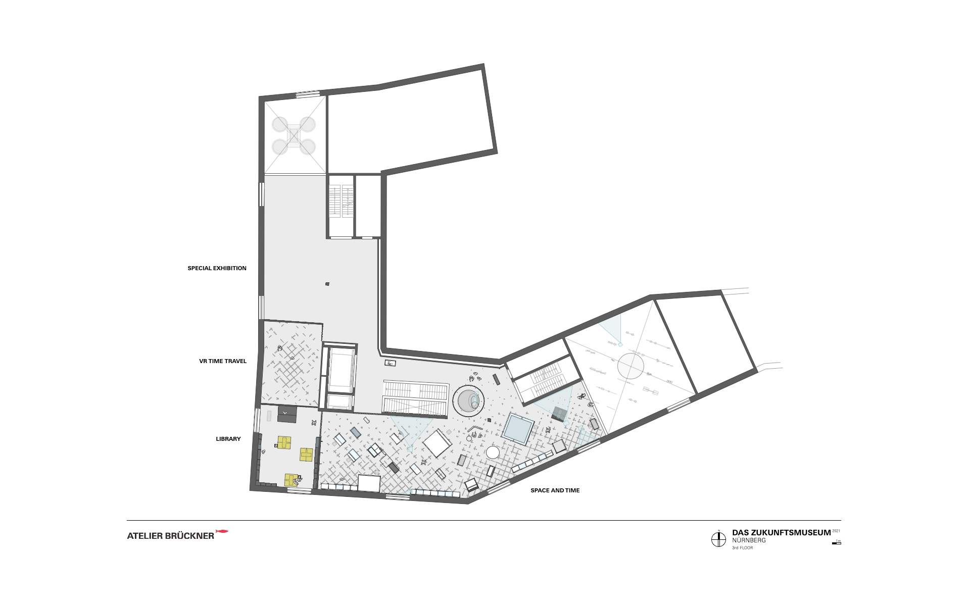
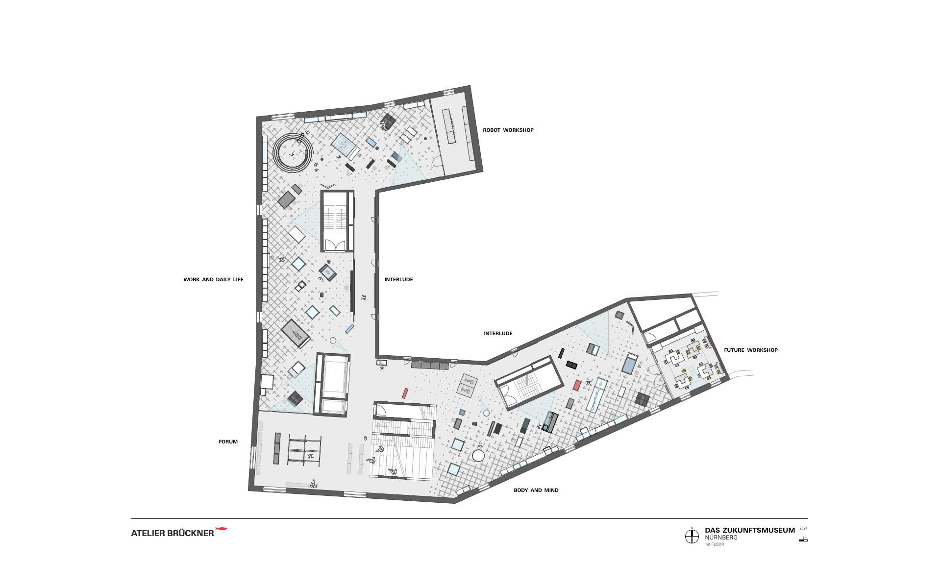
2. 五大主题展区与展览核心逻辑
博物馆设有五个以色彩区分的主题区,邀请游客深入探索未来的可能性:“工作与日常生活”“身体与心智”“城市系统”“地球系统” 以及 “空间与时间”。展览着重突出 “科学与科幻” 的并列关系,展现二者的相互作用。展品究竟源自科学领域(已投入实际应用或即将实现工业化生产),还是纯粹的科幻构想(完全无法实现)?展区既包含文学、电影中的科幻发明,也涵盖科学理论中的思想实验与创新理念。
Five colour-coded theme-based areas invite visitors to take a close look at what the future has in store: “Work and Daily Life”, “Body and Mind”, “City System”, “Earth System” and “Space and Time”. The exhibition emphasises the juxtaposition of science and fiction and shows how they interact with each other. Do the exhibits stem from science, have they already been implemented in practice or are they soon to be ready for industrial production? Or are they pure fiction and simply infeasible? They include inventions of science fiction in literature and films but also thought experiments and ideas from scientific theory.
3. 模块化展览设计与工业风格
所有展览元素均采用模块化设计,适配于一种 “基础布局”—— 可理解为地面上的网格结构。这种设计能让人联想到虚拟 3D 空间,为游客提供发挥自身想象力与设计思路的空间。展区呈现的三维布局兼具工业感与清晰的结构感:清水混凝土表面、悬挂式灯轨及技术连接构件均凸显工业风格,且所有展览元素均遵循博物馆的 “基础网格布局” 这一核心框架。
The modular exhibition elements fit into a basic pattern, which can be envisaged as a grid on the floor. This triggers associations with a virtual 3D space that provides scope for one’s own imagination and design ideas. The three-dimensional layout that is presented has an industrial and clearly structured look. Fair-faced concrete surfaces, suspended light rails, and technical connecting elements have an industrial character. All the exhibition elements follow the basic grid pattern, the matrix of the museum.
4. 楼层功能分区
除建筑内二层、三层、四层的展览区外,地面层(一层)设有实验室,二层设有机器人工作室和名为 “未来工坊” 的动手实践区,四层还设有虚拟现实(VR)时空旅行专区(该项目与科隆大学合作)。
In addition to the exhibition areas on the 1st, 2nd and 3rd floors of the building, there are laboratories on the ground floor, a robot workshop and a tinkering area, called future workshop, on the 1st floor as well as an section enabling VR time travel (project in cooperation with Cologne University) on the 3rd floor.
5. 参观起点 / 终点:双层中庭与动态媒体立方体
博物馆参观路线的起点与终点均为一处宽敞的双层挑高中庭,这里设有可坐式台阶,周围环绕着带新闻滚动条的 LED 灯带。中庭中央悬挂着一个极具特色的动态媒体立方体,边长 3.75 米,既能激发游客的好奇心,也能吸引他们探索展区。该立方体配备 9 块 LED 屏幕,每块屏幕均可独立移动并实现 180 度旋转;在特定时刻,所有屏幕会同步朝外、超出立方体框架,组成一个完整的屏幕面,可用于举办展示活动。
The starting and end point of the tour through the museum is a spacious, two-storey forum which has steps for sitting on and is surrounded by LED strips with news tickers. Suspended centrally in the space, there is a remarkable kinetic media cube with an edge length of 3.75 metres that awakes curiosity and stimulates people’s interest in visiting the exhibition. The cube is fitted out with nine LED screens, each of which can independently be moved and rotated by 180 degrees. At a certain point, they all face forwards together, outward beyond the frame, and form a single screen surface that is suitable for presentations.
6. 参观总结与互动讨论
作为参观体验的总结环节,屏幕会展示各展区的主题、展品及色彩方案。展示模式中还包含 “博物馆互动游戏” 的评估环节:游客在参观过程中,可通过腕带收集选定的展品;随后在媒体站整理这些展品,并对新技术的机遇与风险进行评估。每天,游客针对以下这类问题的回答会在中庭进行现场讨论:人们对 “基因剪刀” 持何种态度?修改胚胎基因组是否合理?是否应使用机器人承担社会照护工作?如何实现交通转型?未来的肉会来自实验室吗?人类是否应探索太空?这些问题在博物馆的不同区域均有呈现。带有 “未来设计师” 标识的媒体立柱会提供正反观点,而接受过伦理问题专项培训的学生将以 “未来传播者(F-Coms)” 的身份,成为游客的直接对接咨询人员。
As a summary of the visit to the exhibition, the screen show the themes, objects and the colour scheme of the exhibition areas. Evaluation of the museum game is envisaged for the presentation mode: while walking through the exhibition, the visitors collect selected exhibits with their wristband. At media stations, they can then process their selection and submit an estimate of the opportunities and risks of the new technologies. Every day, their answers to such questions as those listed below are discussed live in the forum:What is people’s attitude towards genetic scissors? Is it permissible for us to alter the genome of embryos? Should we use robots for social care tasks? How can we achieve the mobility turnaround? Will meat come from the laboratory in future? Should humankind explore space? These are questions that the museum asks in different places. Media steles with “future designers” supply contrary arguments. Students who have been specially schooled in ethical questions are F-Coms (future communicators) and act as direct contact persons for visitors.
7. 多感官体验与特色展品
展览邀请游客以轻松的方式探索 “科学与科幻之间的世界”,并提供多感官体验:“轻质混凝土” 有多重?未来的食物会是什么气味?我们能否分辨数字对话对象是否为人工智能(AI)展区内的大型特色展品包括:2018 年飞行出租车原型(游客可通过触觉 3D 模型进一步体验)、1985 年进入太空且带有灼烧痕迹的研究舱,以及 2020 年量子计算机(外观如同艺术装置)。“科学与科幻相互影响” 这一观点,通过两组经典展品的对比得到印证:1993/94 年《星际迷航》中的 “通讯器”,以及 1996 年摩托罗拉推出的首款折叠手机 “StarTAC”。
The exhibition invites people to explore the world between science and fiction in a lighthearted manner and makes an offer to all the senses: How heavy is “light concrete”? How will our food smell in future? Are we able to discern whether our digital interlocutor is a form of AI (artificial intelligence)? Large impressive exhibits include the prototype of a flying taxi from 2018 that visitors can experience additionally with the help of a haptic 3D model, a research capsule with powder burns that was in space in 1985 and a quantum computer from the year 2020 that has the appearance of an artwork installation. The fact that science and fiction exert an influence on each other is illustrated by the classical comparison of two exhibits: the communicator from Star Trek (1993/94) and the first folding mobile phone from Motorola, called StarTAC, from the year 1996.
8. 博物馆联系方式
纽伦堡德意志博物馆 ——“纽伦堡未来博物馆”
地址:德国纽伦堡市奥古斯汀霍夫 4 号,
邮编 90403
联系人:塞巴斯蒂安・林施泰特(Sebastian Linstädt)
部门:公关与传播部
电话:+49 173 6816757
邮箱:s.linstaedt@deutsches-museum.de;presse-nuernberg@deutsches-museum.de
官网:www.deutsches-museum.de/nuernberg
DMN Deutsches Museum Nürnberg – “Das Zukunftsmuseum”
Augustinerhof 4
90403 Nürnberg | Germany
Sebastian Linstädt
Press and Public Relations
T. +49 173 6816757
s.linstaedt@deutsches-museum.de;presse-nuernberg@deutsches-museum.de
www.deutsches-museum.de/nuernberg
总体规划、展览设计、舞台设计、平面设计 / General Planning, Exhibition Design, Scenography, Graphic Design:ATELIER BRÜCKNER
灯光规划 / Light Planning:Belzner Holmes
媒体规划 / Media Planning:medienprojekt p2
建筑设计 / Architecture:Staab Architekten
摄影 / Photography:Daniel Stauch





















